Construcción en Hormigón
Calle Velázquez, 3 Proyecto de Alejandro de la Sota
Construcción en Madera
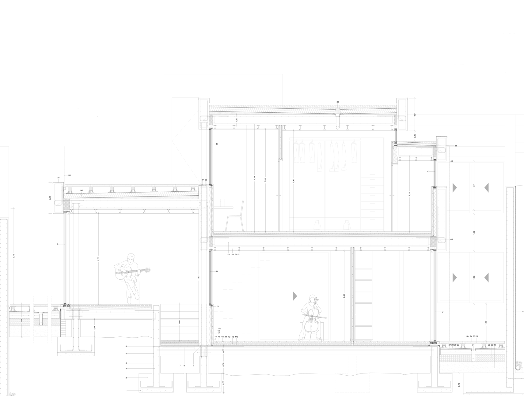
Casa S
Puerta de San Vicente
Delineado con AutoCad
Edificio Los Cubos
Rhinoceros + AutoCad
Museo Everson - Ieoh Ming Pei
Delineado en Autocad
Edificio de apartamentos en Lugano - SPBR
Modelado y visualizado con Revit
Construcción: Fachada Ventilada
Casa Tom Ford
Construcción: Fachada Tradicional
Casa Tom Ford