Proyectos
Fotografía
Renders
Diseño Gráfico
Extras
Contacto
Proyectos
Fotografía
Renders
Diseño Gráfico
Extras
Contacto
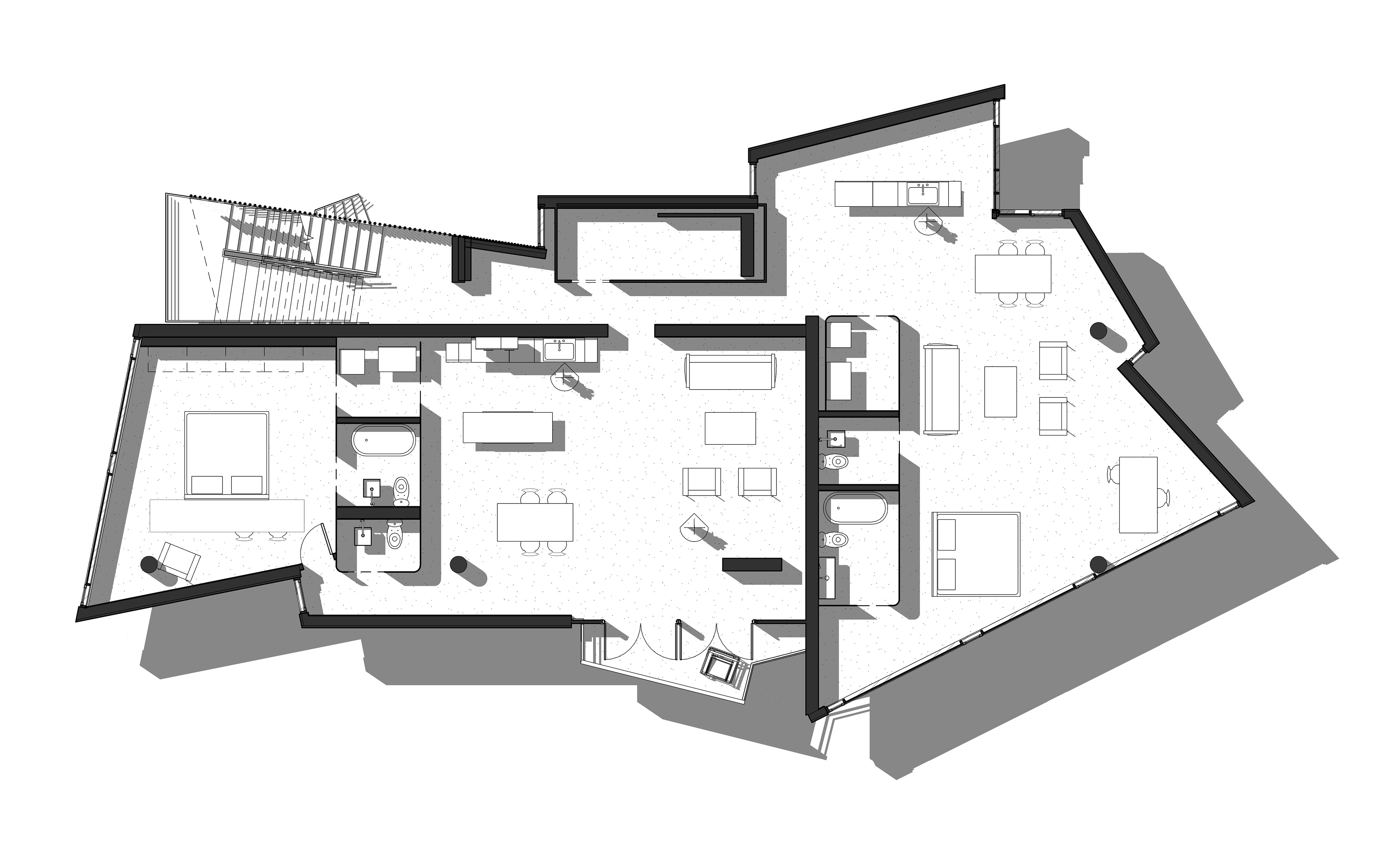
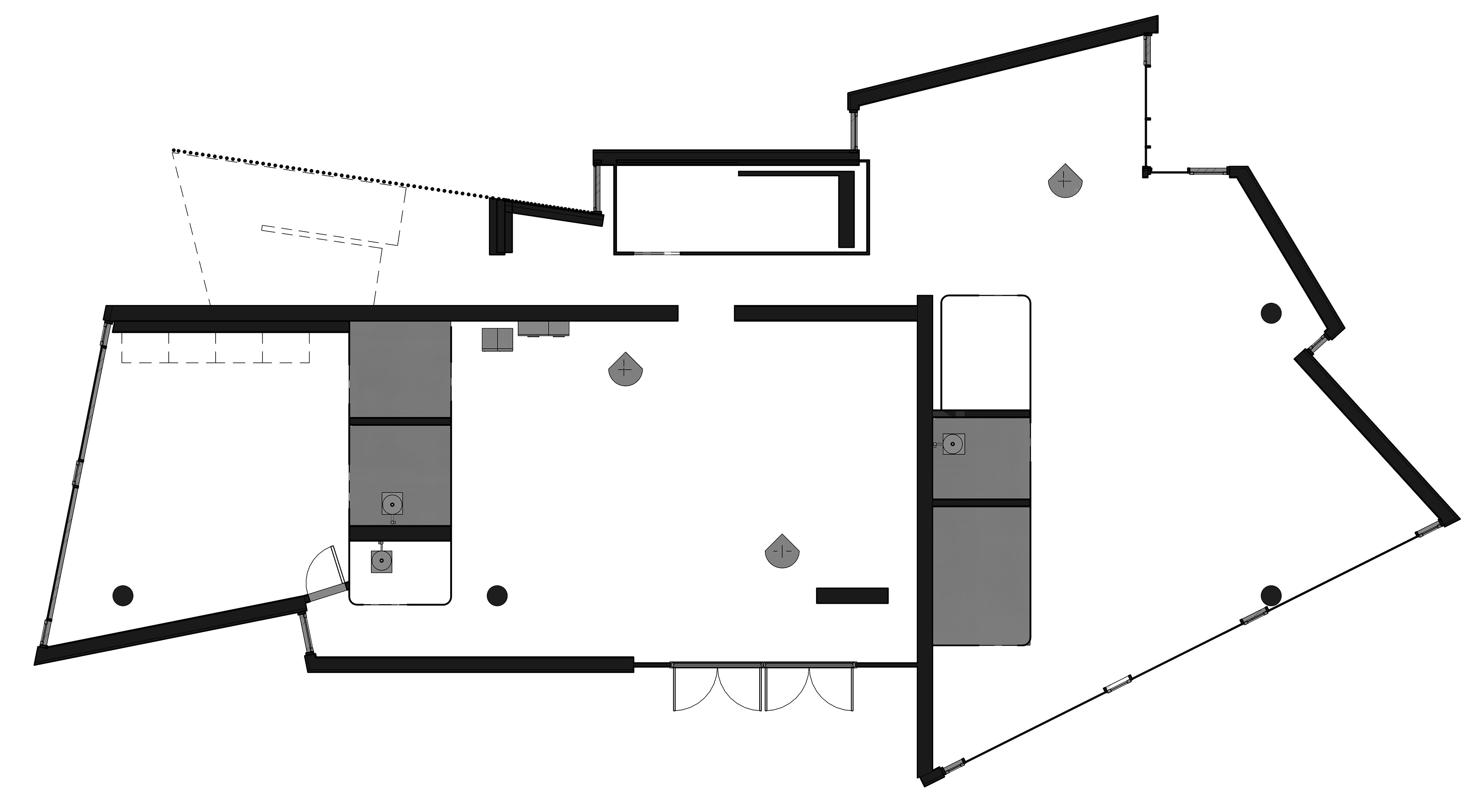
Edificio de apartamentos en Lugano - SPBR
Modelado y visualizado con Revit
↑
Back to Top
Esta página web usa cookies. Decida usted:
Aceptar
Rechazar