Proyectos
Fotografía
Renders
Diseño Gráfico
Extras
Contacto
Proyectos
Fotografía
Renders
Diseño Gráfico
Extras
Contacto
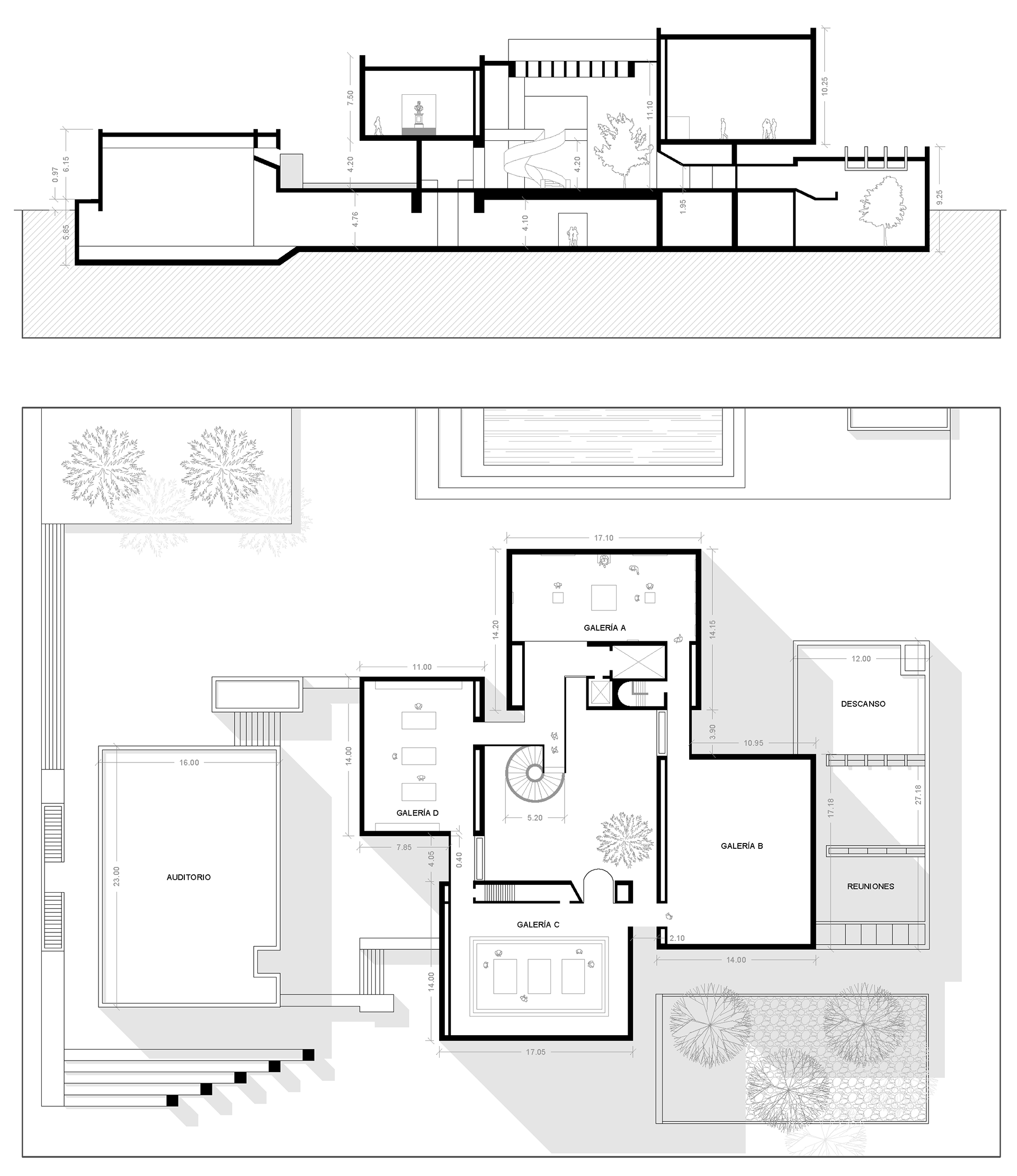
Museo Everson - Ieoh Ming Pei
Delineado en Autocad
↑
Back to Top
Esta página web usa cookies. Decida usted:
Aceptar
Rechazar