Proyectos
Fotografía
Renders
Diseño Gráfico
Extras
Contacto
Proyectos
Fotografía
Renders
Diseño Gráfico
Extras
Contacto
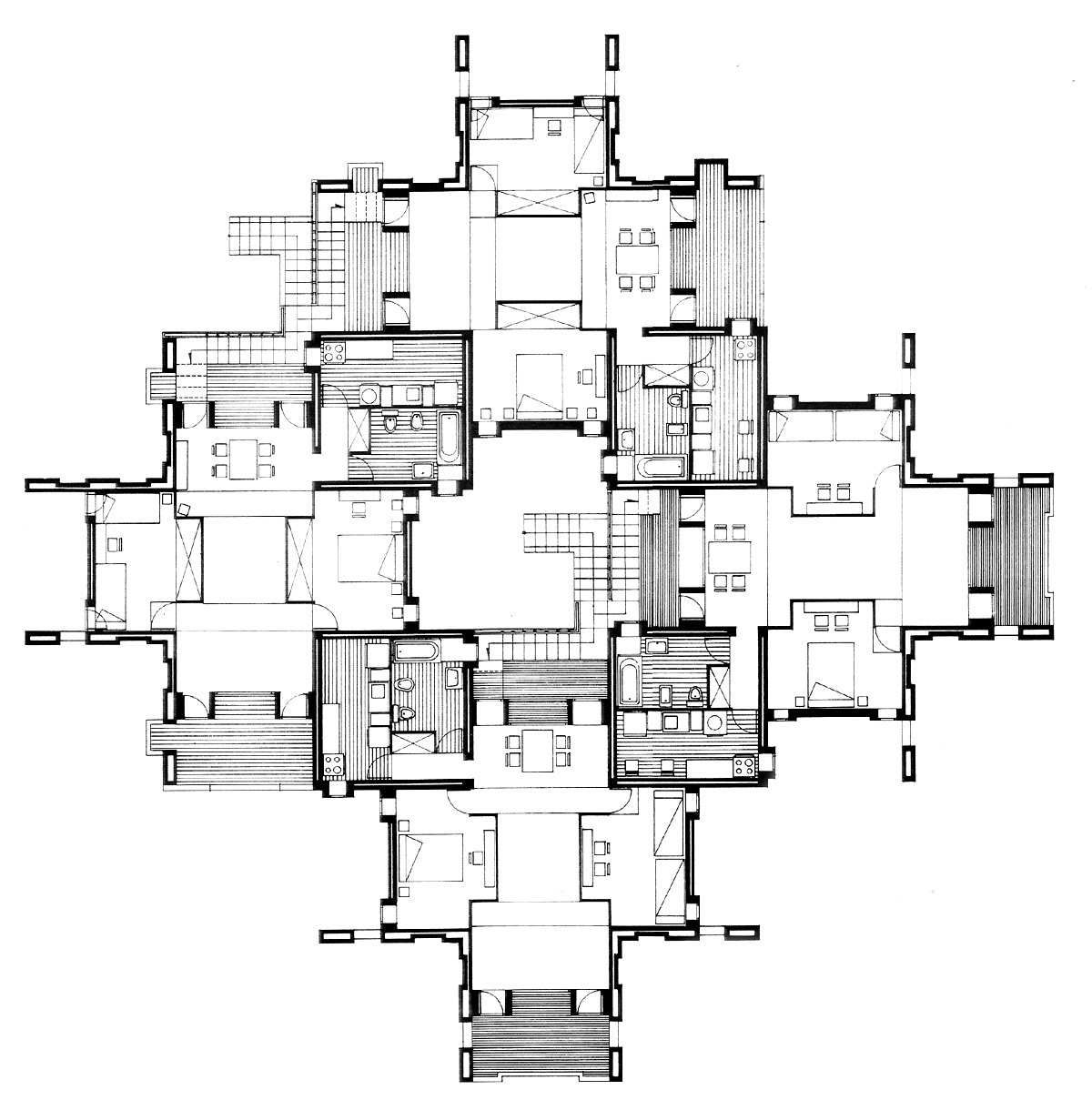
La Muralla Roja
Ricardo Bofill
Ejercicio de renderizado donde clonar una fotografía real
Fotografía Real
↑
Back to Top
Esta página web usa cookies. Decida usted:
Aceptar
Rechazar